home
Nuestra Empresa
Productos
Radiografía Industrial
Fabricación Estructuras Metálicas
Equipos y Sistemas de Pesaje Industrial
Monitoreo de Temperatura
Servicios
Contacto
Radiografía Industrial
Sistemas para operación contínua
Sistemas de Control por PESO
Sistemas para Pesaje de Camiones
Pesaje para Silos, Tolvas y Estanques
Sistema de Monitoreo de Temperatura
Registro, alerta y reportes automatizados.
Laboratorio, Banco de Sangre, Farmacia e Industrias.
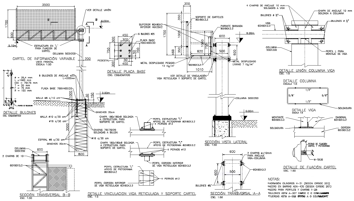
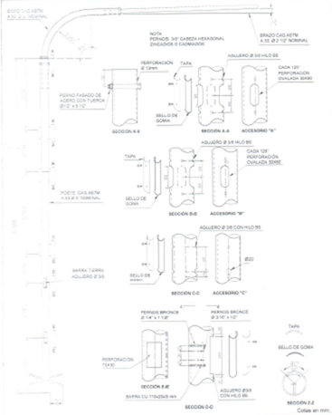
Fabricación de Postes y Estructuras Metálicas
Postes SOLARES
Normativas ISO y ASTM
Diferentes tamaños y formas
Accesorios Cajas y Soportes
Armaduras para Montaje a Piso
Semáforos LED
Normales y Especiales
Postes Vehicular (todas las formas)
Estructuras Metálicas Livianas & Medianas
Galpón Industrial
Pasarelas y Escalas Peatonales
Gabinetes Industrial ( diferentes tamaños y formas )
Pórticos VEHICULAR
Tipo BANDERA
Tipo ARCO